产品中心
您当前位置:产品中心 >> 止回阀系列 >> SFCV-橡胶瓣止回阀
SFCV-橡胶瓣止回阀
产品概述
橡胶瓣止回阀主要由阀体、阀盖及橡胶瓣三种主要零件组成。其中橡胶瓣由钢板、钢棒及强化尼龙布做衬底,外层包覆橡胶制成,阀瓣开关寿命可达100万次。该阀采用全流面积式设计,具有水头损失小,不易堆积杂物,维修简便等特性。该阀主要适用于给排水系统,可安装于水泵出水口处,以防止倒流及水锤对泵损害。该阀还可安装在蓄水池进出水水管的旁通管上,以防止池水倒流至给水系统中。
产品详情

主要零件材质

阀体/阀盖

螺栓

阀瓣

橡胶

压强

口径

球墨铸铁、铸钢、不锈钢

不锈钢、合金钢

碳钢+强化尼龙+NBR或NR

NBR/NR

1.0MPa、1.6MPa

DN50-DN1800





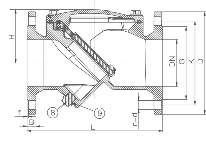
主要外形连接尺寸

DN

L

D

K

G

n-d

B

f

H

50

203

165

125

99

4-Φ19

19

3

88

65

216

185

145

118

4-Φ19

19

3

100

80

241

200

160

132

8-Φ19

19

3

108

100

292

220

180

156

8-Φ19

19

3

118

125

330

250

210

184

8-Φ19

19

3

150

150

356

285

240

211

8-Φ23

19

3

160

200

495

340

295

266

12-Φ23

20

3

250

250

622

405

355

319

12-Φ28

22

3

295

300

698

460

410

370

12-Φ28

24.5

4

330

下一个产品:表后控制阀(H32X-16T)
上一个产品:HH49X-蝶式双瓣止回阀


0578-6878373
qrCode