产品中心
您当前位置:产品中心 >> 水力控制阀系列 >> 100X-遥控浮球阀
100X-遥控浮球阀
产品概述
100X遥控浮球阀是兼具多功能的水力操作式阀门。主要安装于水池或高架水塔的进水口处,当水位达到设定的高度时,主阀由浮球导阀控制关闭进水口停止供水;当水位下降后,主阀由浮球导阀控制打开进水口向水池注水,实现自动补水。液位控制精确,不受水压干扰;隔膜式遥控浮球阀可随水池的高度及使用空间任意位置安装,维护、调试、检査方便、密封可靠,使用寿命长。隔膜式阀门性能可靠、强度高、动作平稳。适用于450口径以下的管道。
产品详情





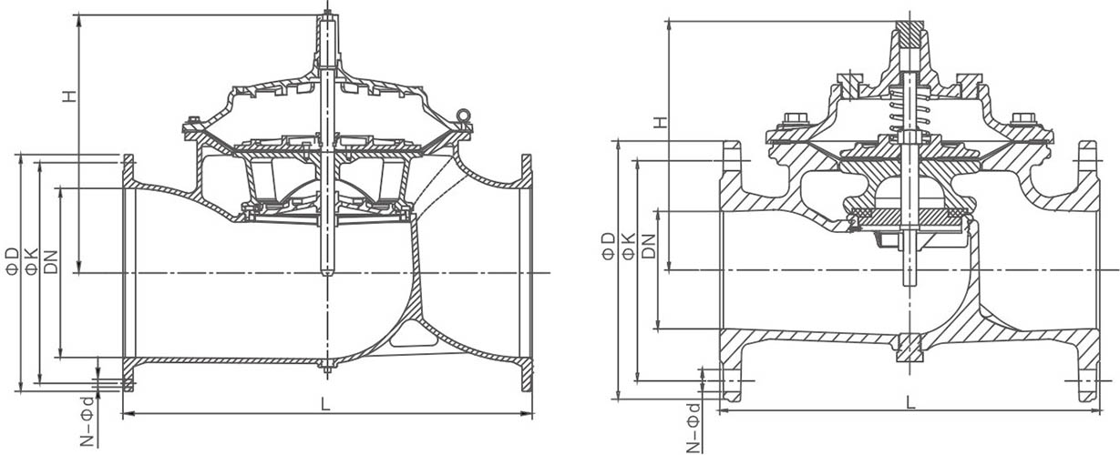
主要外形连接尺寸

DN

L

H

ΦD

ΦK

N-Φd

PN10

PN16

PN10

PN16

PN10

PN16

40

230

139

150

150

110

110

4-Φ19

4-Φ19

50

230

139

165

165

125

125

4-Φ19

4-Φ19

65

290

159

185

185

145

145

4-Φ19

4-Φ19

80

310

179

200

200

160

160

8-Φ19

8-Φ19

100

350

214

220

220

180

180

8-Φ19

8-Φ19

125

400

275

250

250

210

210

8-Φ19

8-Φ19

150

480

333

285

285

240

240

8-Φ23

8-Φ23

200

600

407

340

340

295

295

8-Φ23

12-Φ23

250

730

476

405

405

350

355

12-Φ23

12-Φ28

300

850

526

460

460

400

410

12-Φ23

12-Φ28

350

980

580

520

520

460

470

16-Φ23

16-Φ28

400

1100

670

580

580

515

525

16-Φ28

16-Φ31

500

1250

790

670

715

620

650

20-Φ28

20-Φ34

600

1450

930

780

840

725

770

20-Φ31

20-Φ37

下一个产品:200D-直驱式减压阀
上一个产品:Z15X-内螺纹闸阀


0578-6878373
qrCode